Toyota Akureyri
Verksvið
Alhliða hönnun
Ár
1999
Staðsetning
Akureyri
Stærð m2
1300 m²
Staða
Klárað
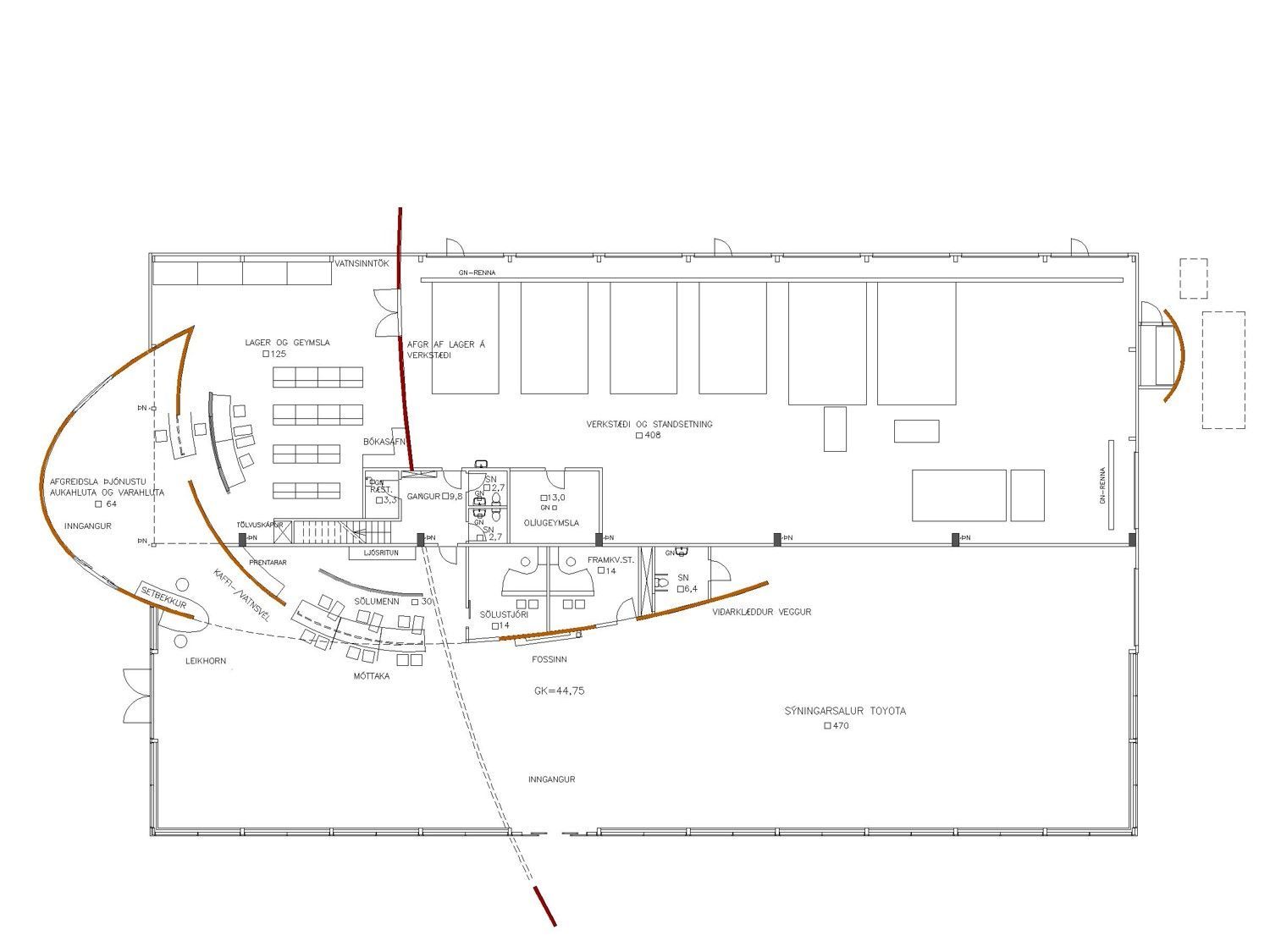
Form lóðarinnar er sporöskjulaga og mótar skýrt flæði þar sem viðskiptavinir aka fyrst framhjá sýningarsal nýrra bíla og síðan hring um svæði notaðra bíla. Byggingin er einföld og nútímaleg og skiptist í söludeild, verkstæði og lager sem tengjast með bogadregnum veggjum innblásnum af formi Toyota.
Innra skipulag skapar skýra leiðsögn milli rýma þar sem veggir leiða viðskiptavini á eðlilegan hátt milli deilda. Sýningarsalur er opinn og gagnsær með glerhjúp sem dregur fram bíla og starfsemi, á meðan hlý efnisnotkun og náttúruleg form vísa til íslenskrar náttúru og styrkja upplifun rýmisins.







