Safnaðarheimili Akureyrarkirkju

Verksvið

Alhliða hönnun

Ár

1987

Staðsetning

Akureyri

Stærð m2

710 m²

Staða

Klárað

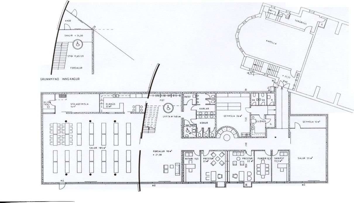
Safnaðarheimilið við Akureyrarkirkju stendur í hlíðinni sunnan við kirkjuna og tengist henni með lágreistri viðbyggingu. Byggingin er mótuð af einföldum og skýrum formum sem falla vel að kirkjunni og umhverfinu í brekkunni. Skipulag hússins leggur áherslu á björt samkomurými og sveigjanlega notkun fyrir safnaðarstarf, fundi og viðburði. Stórir gluggar opna rýmin að bænum og fjallasýninni og skapa sterka tengingu við landslagið í kring.