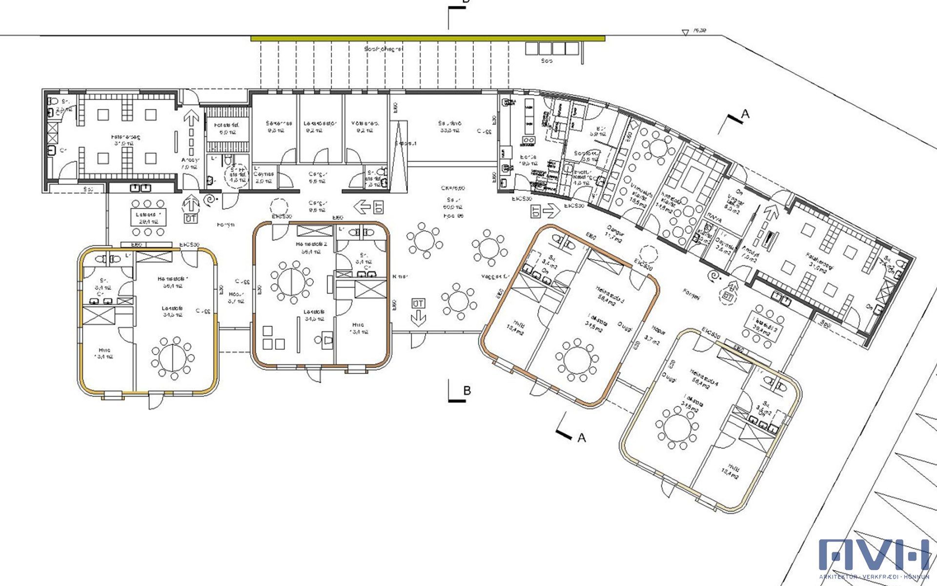
Leikskólinn Naustatjörn

Verksvið

Almenn hönnun

Ár

2003

Staðsetning

Akureyri

Stærð m2

704 m²

Staða

Klárað

Leikskólinn Naustatjörn er hannaður með áherslu á skýra rýmisskipan, öryggi og notendavænt umhverfi. Hönnunin byggir á einföldum, ferköntuðum rýmum sem tengjast saman í skýra og heildstæða rýmisheild og gluggaopnanir í mismunandi hæðum tengja börnin beint við útisvæði.